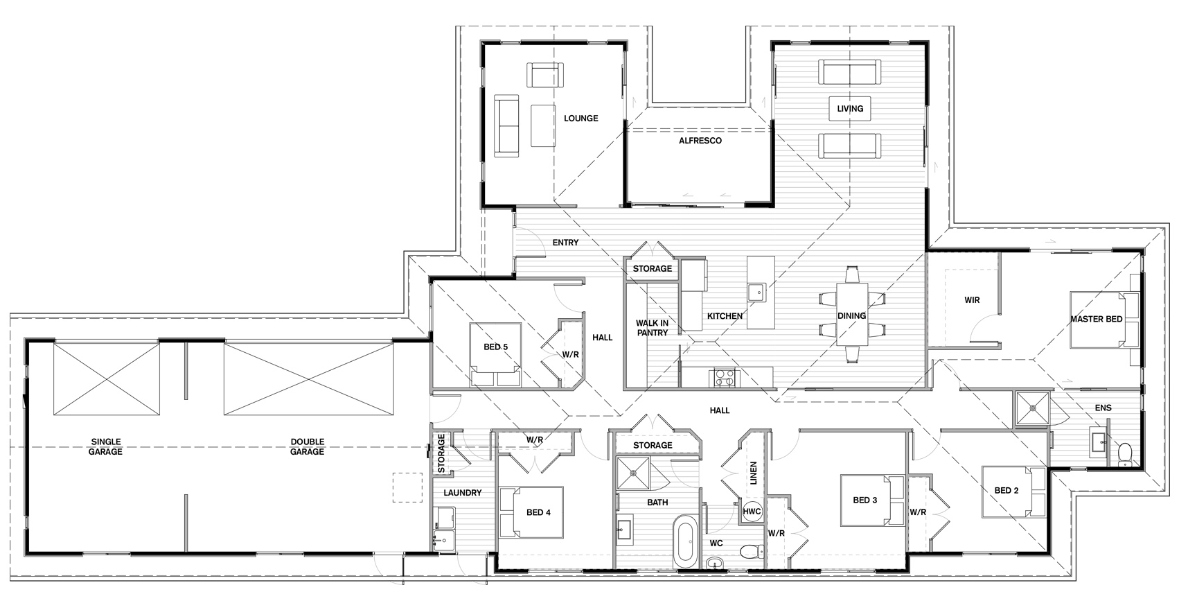
KH 309
309 sqm
Length: 32.31
Width: 15.330
What’s included
Check out our A1 homes material specifications to give you an indication of what is included in your standard home package – everything from framing to whiteware.
A1 Kit home Material Specifications
| Full Plans | Standard plans from the A1 Range, based on a high wind zone and earthquake A, as required for consent to build (excluding any engineer’s designs) |
|---|---|
| Wall Frames | All exterior and interior 90x45mm H1.2 treated pre-cut and pre-nailed timber |
| Roof Framing | Gang nailed engineer designed trusses H1.2 treated timber |
| Fascia | 200x25mm pre-primed H3 treated timber |
| Roofing | Metalcraft Colorsteel Maxam, longrun corrogated or ribbed profile from the standard colour range |
| Soffits | James Hardie HardieSoffit |
| Cladding | James Hardie 180mm Linea weatherboard (other options available including Brick or other James Hardie products, please discuss with your local franchise) |
| Guttering | Marley PVC gutter with PVC round downpipes in white |
| Windows | ThermalHEART double glazing with pre-primed liners from the standard colour range |
| Front Entry Door | Insulated powder coated aluminium panel with lever handle (if applicable) |
| Garage Door | Dominator Powder coated door from standard colour range with remote openers (if applicable) |
| Ceiling Battens | Timber ceiling battens |
| Insulation | Insulation specification in accordance with H1 calculations |
| Interior Linings | Standard 10mm GIB plasterboard to walls with 13mm to ceilings. GIB Aqualine to bathroom areas |
| Scotia | 55mm GIB-Cove and No.8 mould where required |
| Skirting | 60mm bevelled No.20 mould |
| Shelving | Ventilated wire shelf with rail to robes and ventilated wire shelving to HWC |
| Interior Doors | MDF flush panel |
| Door Hardware | Windsor hardware – Futura range |
| Kitchen | Formica top, single bowl stainless steel insert, Melteca prefinished carcass with Meltrim edge doors and D pull handles |
| Appliances | Bosch appliances A1 standard pack incl. stainless steel wall oven, ceramic or gas cooktop, dishwasher and canopy rangehood |
| Laundry Tub | Aquatica laundry tub |
| Showers | Newline Brighton corner moulded, size as per plans |
| Bath | Adesso Sol III BTW freestanding bath |
| Vanities | VCBC wall hung vanities, size as per plans |
| Toilets | Aquatica Kudos toilet suite |
| Tapware | Aquatica Circo tapware |
| Hot Water Cylinder | Rheem 180L electric hot water cylinder with PVC tray |
| Freight | This price covers Kit home freight within a 100km delivery radius from our supplying store, outer area deliveries POA |
Please note the following are not supplied with an A1 Kit Home:
Any building and/or resource consent fees, concrete or timber foundation, general fixings (GIB fix glue is supplied) plumbers pipe, S traps, valve kit and wastes (shower wastes included), electrical wire and fittings, plasterboard stopping and decorating materials, floor coverings, window furnishings, kitchen installation.
*PRICES CURRENT AS OF: December 2025 and include GST. This price is subject to change, including as a result of increases in the cost of materials, services, labour and unforeseen changes in freight. This price is specific for your selected region. See above for material specifications and terms and conditions.
**Ask your local A1 team member for a breakdown of these site related costs. *ALL IMAGES ARE ARTIST IMPRESSION ONLY AND MAY SHOW DIFFERENT CLADDING OPTIONS.
Hi, we're Vicki and Paul, A1homes Wellington
Get in touch to talk about modifying one of our plans to suit your needs, or to further discuss what's involved in building an A1 home.
Not your region? Select a different region by clicking

WAIKANAE SHOWHOME
30 Main Rd, Waikanae (next to Mobil)
OPEN HOURS
10.00am – 4.00pm Mon to Fri
10.00am – 2.00pm Sat
Closed Sundays and Public Holidays
Vicki Brown – Home Consultant
e:sales.kapiti@A1homes.co.nz p:027 229 9101
Paul Wilson – Home Consultant
e:paul.wilson@A1homes.co.nz p:021 115 7659
Licence Holder:
ACW Construction Ltd PO Box 12, Waikanae 5250 t: 04 977 3501

