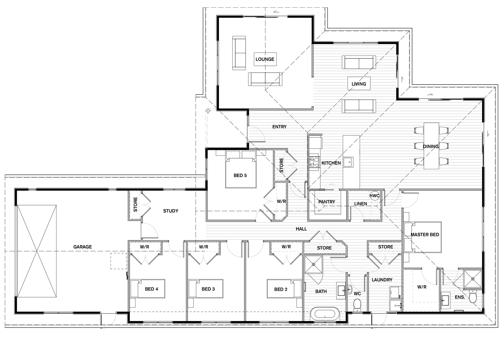
KH 273
273 sqm
Length: 24.92
Width: 16.33
Base build price in Wellington
$
$621,978*
+Unique to your site guide $70,000 - $110,000
Want to personalise this plan? Talk to us today.
What’s included
Check out our A1 homes material specifications to give you an indication of what is included in your standard home package – everything from framing to whiteware.
A1 Full Build Material Specifications
| Full Plans | Standard plans from the A1 Range, based on a high wind zone and earthquake A, as required for consent to build (excluding any engineers designs) |
|---|---|
| Insurance | Builder’s risk Insurance whilst under construction |
| Foundations | Standard concrete slab foundation based on ‘good ground’ and a level building platform |
| Wall Frames | All exterior and interior 90x45mm H1.2 treated pre-cut and pre-nailed timber |
| Roof Framing | Gang nailed engineer designed trusses H1.2 treated timber |
| Fascia | Colorsteel fascia from the standard colour range |
| Roofing | Metalcraft Colorsteel Maxam, longrun corrogated or ribbed profile from the standard colour range |
| Guttering | Colorsteel guttering with white PVC round downpipes |
| Soffits | James Hardie HardieSoffit |
| Cladding | James Hardie 180mm Linea weatherboard (other options available including Brick or other James Hardie products, please discuss with your local franchise) |
| Windows | ThermalHEART insulated, double glazed with pre-primed liners from the standard colour range |
| Front Entry Door | Insulated powder coated aluminium panel with lever handle (if applicable) |
| Garage Door | Dominator powder coated door from standard colour range with remote openers (if applicable) |
| Ceiling Battens | Metal ceiling battens |
| Insulation | Insulation specification in accordance with H1 calculations |
| Electrical | Downlights, switchgear, extraction to bathrooms. Layout in accordance with design |
| Heat Pump | Suitable to size and specification of home |
| Interior Linings | Standard 10mm GIB plasterboard to walls with 13mm to ceilings. GIB Aqualine to bathroom areas |
| Floor Coverings | For all dry and wet areas |
| Scotia | 55mm GIB-Cove and No.8 mould where required |
| Skirting | 60mm bevelled No.20 mould |
| Shelving | Ventilated wire shelf with rail to robes and ventilated wire shelving to HWC |
| Interior Doors | MDF flush panel doors |
| Door Hardware | Windsor hardware – Futura range |
| Plasterboard Stopping | To a level 4 paint finish |
| Colour Consultation | 1 hour |
| Painting | Exterior – Soffits and cladding where required (single colour) Interior – internal surfaces where required, acrylic enamel to wet areas (two colours) |
| Kitchen | Fully assembled, Formica top, single bowl stainless steel insert, Melteca prefinished carcase with Meltrim edge doors and D pull handles |
| Appliances | Bosch appliances A1 standard pack incl. stainless steel wall oven, ceramic or gas cooktop, dishwasher and canopy rangehood |
| Laundry Tub | Aquatica laundry tub |
| Showers | Newline Brighton corner moulded, size as per plans |
| Bath | Adesso Sol III BTW freestanding bath |
| Vanities | VCBC wall hung vanities, size as per plans |
| Toilets | Aquatica Kudos toilet suites |
| Tapware | Aquatica Circo tapware |
| Bathroom Accessories | Heated towel rail, toilet roll holders, polished edge mirrors to vanities |
| Hot Water Cylinder | Rheem 180L electric hot water cylinder with PVC tray |
| Post Construction Clean | Included |
| Freight | This price covers delivery of materials within a 100km delivery radius from our supplying stores. Outer area deliveries POA |
| Guarantee | All A1 Built homes include a Master Build 10 Year Guarantee for your total peace of mind. All products used in the construction are covered by applicable manufacturers warranties |
*PRICES CURRENT AS OF: December 2025 and include GST. This price is subject to change, including as a result of increases in the cost of materials, services, labour and unforeseen changes in freight. This price is specific for your selected region. See above for material specifications and terms and conditions.
**Ask your local A1 team member for a breakdown of these site related costs. *ALL IMAGES ARE ARTIST IMPRESSION ONLY AND MAY SHOW DIFFERENT CLADDING OPTIONS.
Hi, we're Vicki and Paul, A1homes Wellington
Get in touch to talk about modifying one of our plans to suit your needs, or to further discuss what's involved in building an A1 home.
Not your region? Select a different region by clicking

WAIKANAE SHOWHOME
30 Main Rd, Waikanae (next to Mobil)
OPEN HOURS
10.00am – 4.00pm Mon to Fri
10.00am – 2.00pm Sat
Closed Sundays and Public Holidays
Vicki Brown – Home Consultant
e:sales.kapiti@A1homes.co.nz p:027 229 9101
Paul Wilson – Home Consultant
e:paul.wilson@A1homes.co.nz p:021 115 7659
Licence Holder:
ACW Construction Ltd PO Box 12, Waikanae 5250 t: 04 977 3501

